Проект деревянной бани 34
Цена комплекта
Ø 180 мм16 200 BYNОцилиндрованное бревно
Ø 200 мм18 570 BYNОцилиндрованное бревно
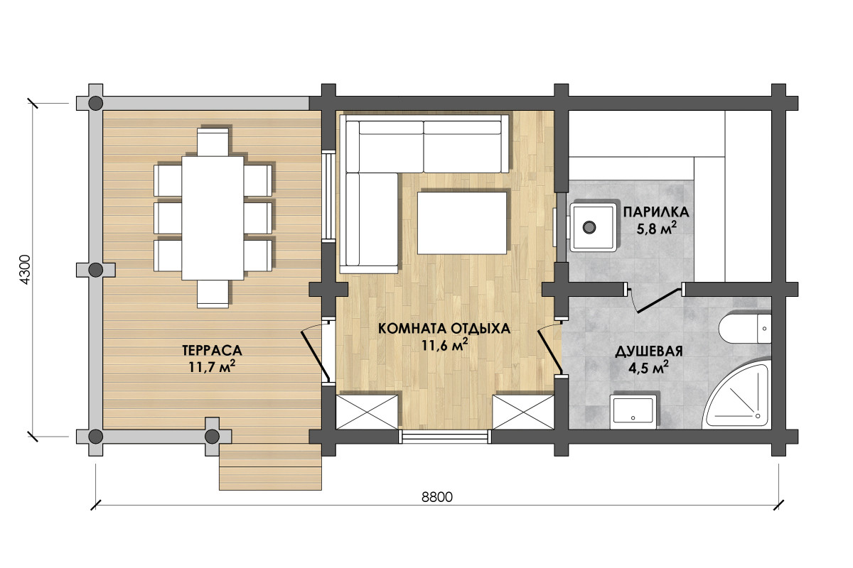
Площадь: 33.6 м²
Осевые размеры: 8.8 х 4.3 м
Этажность: 1
Терраса: да


Площадь: 33.6 м²
Осевые размеры: 8.8 х 4.3 м
Этажность: 1
Терраса: да
Проект деревянной бани 34 – баня из оцилиндрованного бревна диаметром 180 мм с террасой. Отличная планировка и привлекательный внешний вид сделали эту баню одной из популярнейших в нашей коллекции проектов. Проект сочетает оптимальный набор помещений: просторную крытую террасу, большую светлую комнату отдыха, душевую и парилку. В этой бане можно не только с комфортом попариться, но и прекрасно отдохнуть большой дружной компанией.
Если Вы желаете в короткие сроки построить баню по проекту 34, рекомендуем заказать деревянную баню в Беларуси в компании Ламбермил. Высокое качество, приятные цены и быстрые сроки строительства гарантируем!
В нашей компании работают профессиональные архитекторы, которые на основании
ваших пожеланий внесут корректировки в планировку и фасады здания.
400 BYN
Архитектурный проект бани (АР). Требуется для согласования строительства в территориальных органах архитектуры.
Состав проекта:
от 16 200 BYN
Комплект материалов для строительства деревянной бани.
Состав:
Доставка, погрузка/разгрузка комплекта рассчитывается индивидуально и зависит от расстояния между складом предприятия и участком заказчика.
от 5 240 BYN
Монтаж бани на участке заказчика.
Включает:

Работаем с типовыми и индивидуальными проектами. Меняем проект с учетом пожеланий заказчика. Вы сами решаете, какой станет Ваша деревянная баня.

Мы используем отборное сырье и современное оборудование, позволяющее добиться хорошего качества продукции и высокой скорости производства.

Осуществляем доставку и монтаж домокомплекта на Вашем участке. Оперативность и профессионализм бригады сборщиков гарантируем.

от 16 200 BYN

от 48 120 BYN

от 23 330 BYN

от 17 130 BYN
Проект бани 39